



Designed and Made in Arizona
Durable Finish
Fast Shipping
Easy Checkout
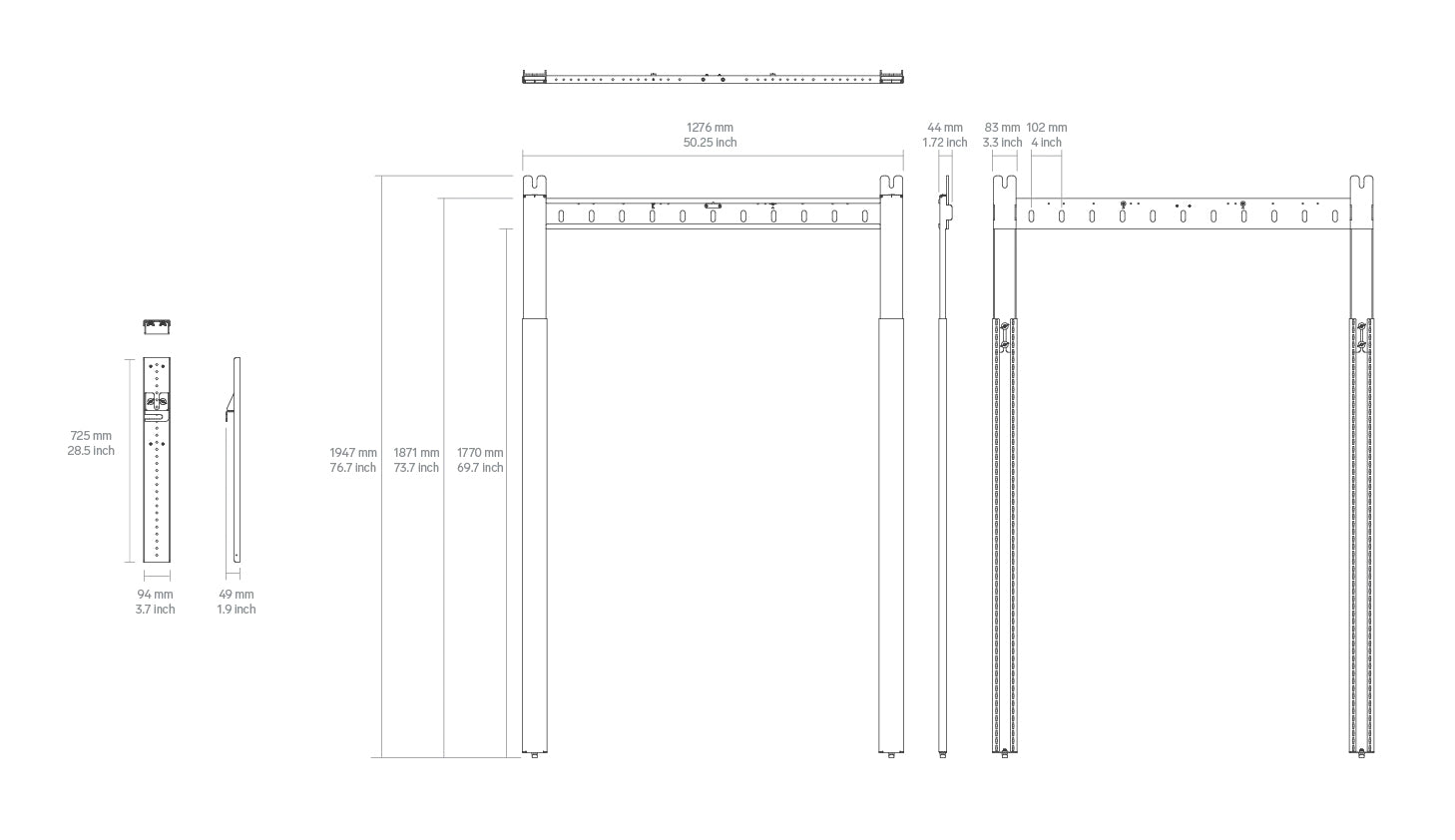
Support your equipment with the floor, not the wall
Support for your mass-deployments
Support for almost any display
Support for safe display installations

Support for most anything.

Support for cables & accessories

Support for easy shipping







